- Винтовые или бетонные сваи.
Барнхаус проект 87
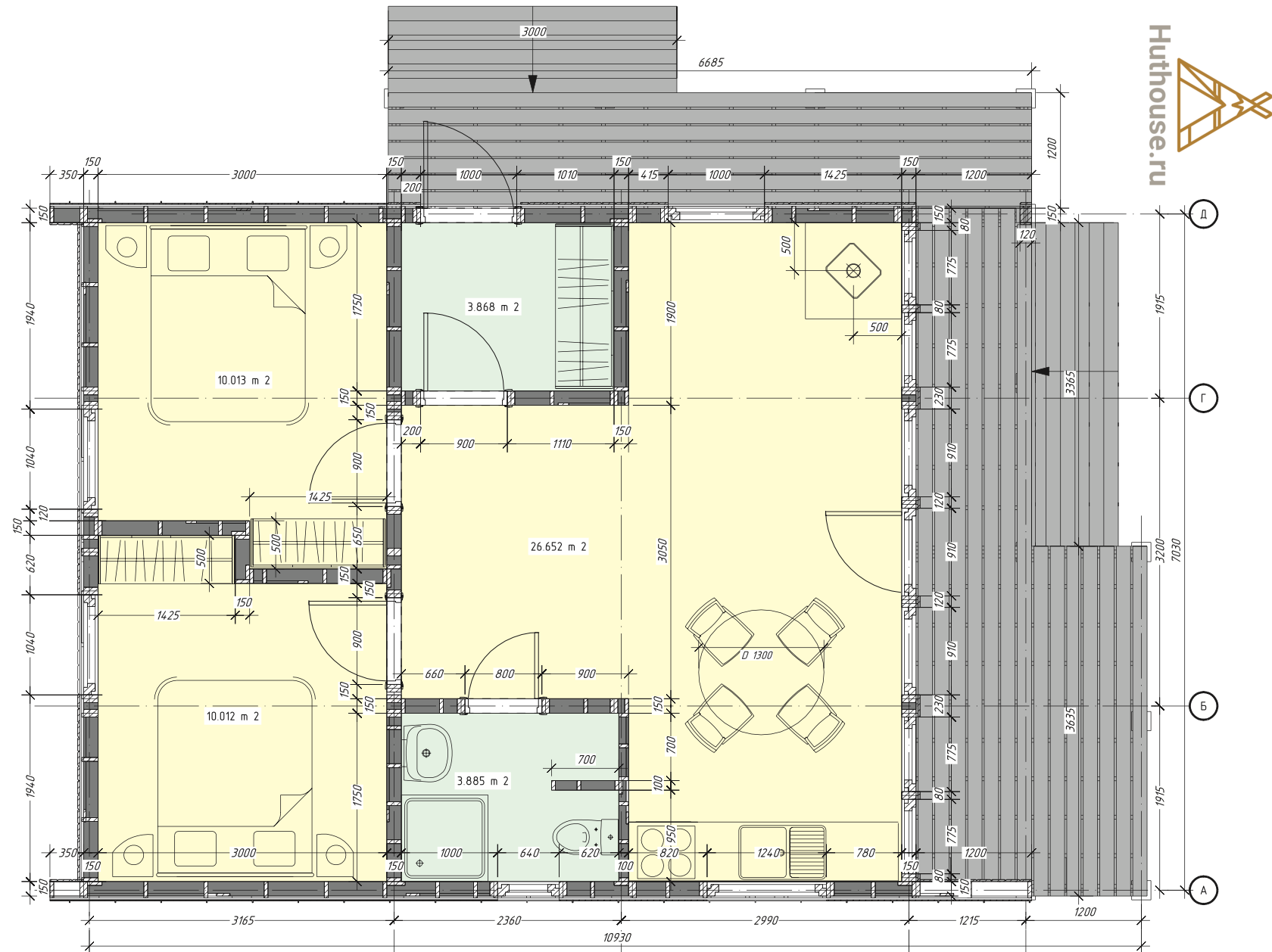
Общая площадь = 87м2
Построим под ключ за 60 дней
Комплектация Барнхаус
В стоимость уже включено все необходимое для проживания: отделка и коммуникации
Фундамент
Силовой каркас
- Свайная обвязка из пакеда досок на ребро: из сухой строганной доски 45х195 мм.
- Лаги и балки перекрытия: из сухой строганной доски 45х195 мм.
- Стропильная система: из сухой строганной доски 45х195 мм.
- Лаги и балки перекрытия: из сухой строганной доски 45х195 мм.
- Наружные стены: из сухой строганной доски 45х195 мм.
- Перегородки: из сухой строганной доски 45х95 мм.
- Крепеж ершенные гвозди и конструкционные шурупы Torx
Внешняя отделка
- Отделка фасада: из имитации бруса 20х145 мм.
- Вент зазор: из сухого строганного брусока 45х45 мм.
- Супер диффузионная мембрана: DELTA-XX PLUS LIGHT
- Скотч для проклейки нахлеста мембраны: DELTA-MULTI-BAND
- Терраса: из палубной доски
Внутренняя отделка
- Внутренняя отделка стен и потолка: из имитации бруса 20х145 мм.
- Вент зазор: из сухого строганного бруска 20х45 мм.
- Обрешетка на полы: из сухой строганной доски 20х95 мм.
- Черновые полы: Фанера 18 мм.
- Отделка полов: Влагостойки ламинат или кварц винил
Кровля
- Покрытие кровли: Металлочерепица, профлист 0,5 мм. Грандлайн матовое покрытие
- Супер диффузионная мембрана: DELTA-XX PLUS LIGHT
- Скотч для проклейки нахлеста мембраны: DELTA-MULTI-BAND
- Обрешетка: из сухой строганной доски 20х95 мм.
- Контр обрешетка: из сухого строганного бруска 45х45 мм.
- Подшив карнизных свесов: из сухой строганной доски 20х95 мм.
Утепление и пароизоляция
- Утеплитель — Базальтовая вата PAROC / Rockwool.
- Кровля, наружные стены, пол, перекрытие: 200 мм. Перегородки: 100 мм.,
- Пароизоляция: DELTA DAWI 200
- Скотч для проклейки нахлеста пароизоляции: DELTA-MULTI-BAND
Окна и двери
Энергоэффективные двухкамерные стеклопакеты: Двойной стеклопакет (3 стекла, 2 камеры)
- Толщина стеклопакета — 40 мм.,
- i-напыление на внутреннее стекло,
- Теплые пластиковые рамки терморазрыва,
- Окна:
- 70 мм. профиль Rehau.
- Немецкая фурнитура Roto.
- Двери:
- Входная дверь с терморазрывом
- Межкомнатные белые с фурнитурой
Инженерия
- Распределительный электрощиток с автоматами ABB, кабель ВВГнг (прокладка кабеля в самозатухающей гофрированной пвх трубе)
- Розеточные группы Legrand, светодиодные потолочные светильники во всех помещениях
- Канализация — труба Ostendorf 50 и 110 мм
- Водопровод — армированный полипропилен Д20 и Д25, комбинированный с гибкой подводкой
Вентиляция
- В санузлах принудительная вытяжка
- Клапаны инфильтрации воздуха КИВ-125 в кухне-гостиной
Сделаем индивидуальный проект
с учетом Ваших пожеланий
и особенностей участка
К нам можно прийти со своей
задумкой, эскизом или примером
дома из интернета и мы полностью
адаптируем его под ваши требования
задумкой, эскизом или примером
дома из интернета и мы полностью
адаптируем его под ваши требования
Заполните форму
Этапы строительства
Вашего дома в стиле Барнхаус:
Вашего дома в стиле Барнхаус:
От производства домокомплекта на производстве до установки
Вашего дома на участке в среднем проходит 30 дней
Вашего дома на участке в среднем проходит 30 дней
Оставляете заявку
на сайте или по телефону
Вы получаете подробную консультацию, предварительный расчет стоимости.
Разработка проекта,
расчет стоимости
Разрабатываем проект с учетом
всех Ваших пожеланий
и особенностей участка
рассчитываем точную стоимость.
всех Ваших пожеланий
и особенностей участка
рассчитываем точную стоимость.
Заключение договора
Внесение аванса на закупку материалов,
Поэтапная оплата за выполненную работу
Поэтапная оплата за выполненную работу
Производство домокомплекта барнхауса
Согласно технической документации,
контроль инженером.
Наши материалы не содержат фенолформальдегидные смолы
и другие вредные примеси
Доставка до участка
Доставку с производства осуществляется
нашими манипуляторами
Строительство
Барнхауса
Барнхауса
Согласно технической документации,
контроль инженером
Монтаж отделки
Производится монтаж отделки, кровли,
утепления, окон и дверей.
Подготовка к сдаче
Проверка выполненных работ
по чек-листу и спецификации
уборка строительного мусора.
Сдача дома в эксплуатацию
Вам останется только
расставить мебель
и пригласить гостей на новоселье!.
Наши офисы
Мы работаем с 10:00 до 19:00 без выходных
Санкт-Петербург
Санкт-Петербург, Ленинский проспект 153
+7 (812) 642-07-09
Москва
+7 (981) 877-20-39
Скачайте каталог проектов
домов в стиле Барнхаус
домов в стиле Барнхаус