Фундамент
- Винтовые или бетонные сваи.
Оставляете заявку
на сайте или по телефону
Вы получаете подробную консультацию, предварительный расчет стоимости.
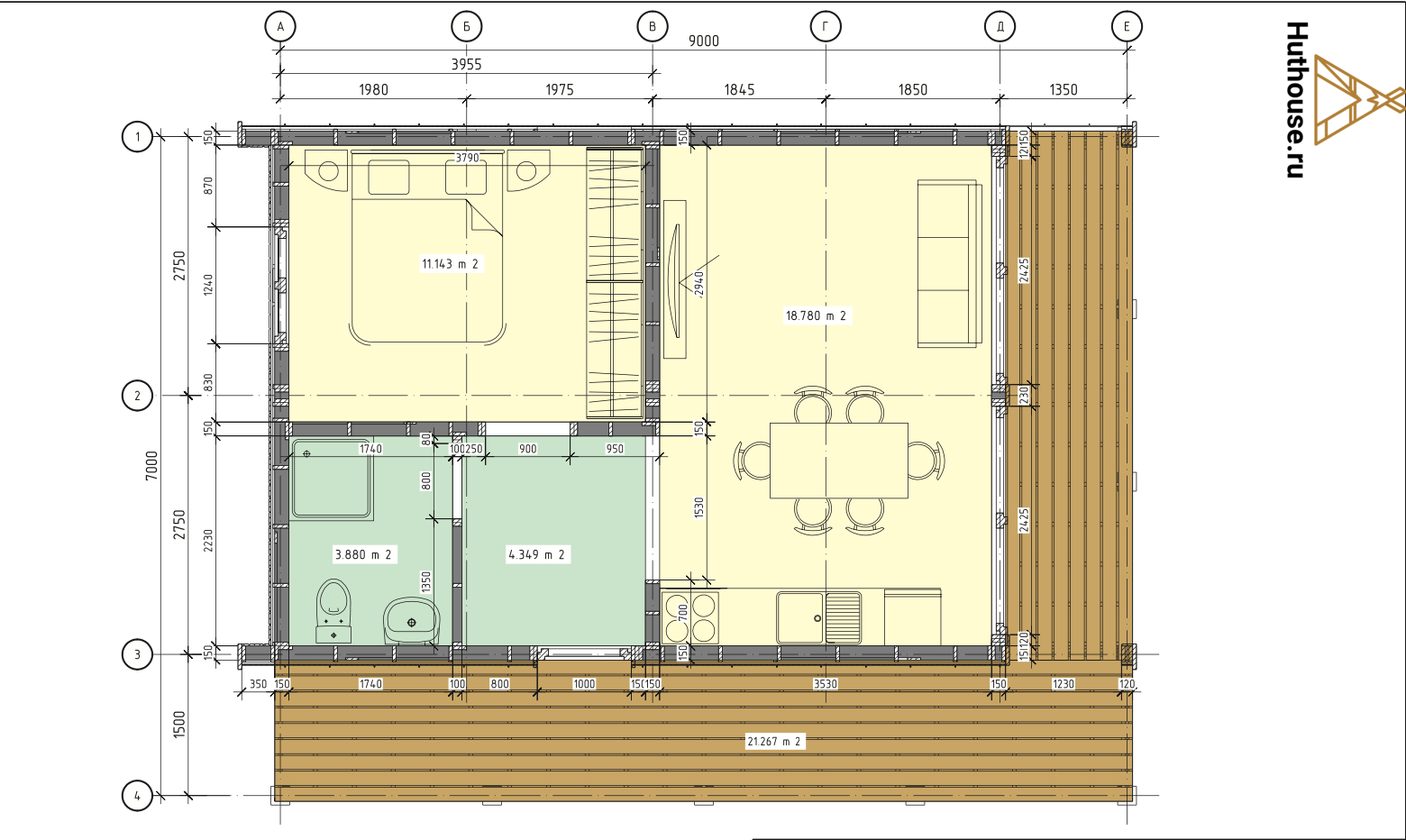
Разработка проекта,
расчет стоимости
Согласно технической документации,
контроль инженером.
Наши материалы не содержат фенолформальдегидные смолы
и другие вредные примеси
Доставка до участка
Доставку с производства осуществляется
нашими манипуляторами
Согласно технической документации,
контроль инженером
Монтаж отделки
Производится монтаж отделки, кровли,
утепления, окон и дверей.
Подготовка к сдаче
Проверка выполненных работ
по чек-листу и спецификации
уборка строительного мусора.
Сдача дома в эксплуатацию
Вам останется только
расставить мебель
и пригласить гостей на новоселье!.
Наши офисы